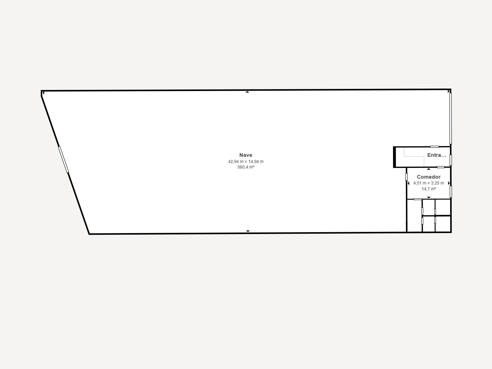
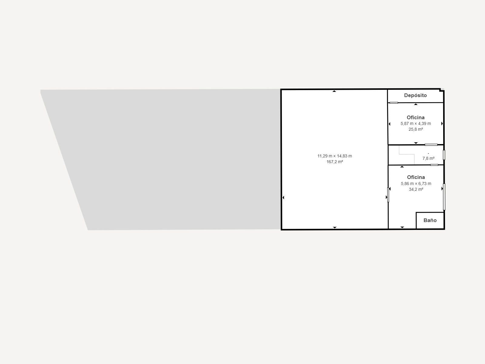
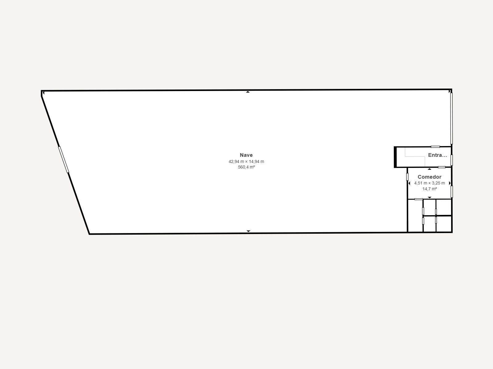
Nave industrial en venta en Casarrubuelos (Madrid) Superficie construida: 797 m² Parcela compartida de 2.581 m² (participación del 41,47%) Año de construcción: 2006 Excelente estado | Fácil acceso | Potencial logísticoTodo el mobiliario que aparece en el reportaje entraría en el precio salvo la cámara frigorífica que podrás adquirirla por 5.000€. ¿Buscas una nave versátil, con excelente ubicación y lista para operar?Te presentamos esta magnífica oportunidad en el Polígono Industrial Puerta de Madrid, de Casarrubuelos, una zona consolidada al sur de Madrid con acceso directo a la A-42, A-5 y R-5. Perfecta para logística, almacenamiento o actividad industrial.La nave se distribuye en dos plantas:✔ Planta baja de 610 m² con gran altura libre, ideal para almacenaje y maniobra de vehículos.✔ Planta superior de 88 m² acondicionada para oficina, gestión o archivo.✔ Dispone de elementos comunes de 99 m² y excelente distribución de espacios. Fácil acceso para camiones Instalaciones en perfecto estado: suelos cuidados, iluminación instalada, acceso peatonal y rodado independiente. Construcción sólida y reciente (2006), cumpliendo normativa. Ideal para empresas que buscan operatividad inmediata sin necesidad de reformas.Ubicada en Casarrubuelos, a tan solo 30 minutos de Madrid capital, en un entorno seguro, ordenado y con otros negocios consolidados. El emplazamiento ofrece potencial de crecimiento y conexión logística con todo el sur de la Comunidad.No dejes pasar esta oportunidad.Contáctanos y programa tu visita.Tu próxima inversión o centro de operaciones te espera en Casarrubuelos.* El precio de la oferta puede ser modificado o darse de baja sin previo aviso. Todos los datos expuestos son meramente orientativos. El precio no incluye impuestos ni gastos. Se debe añadir a la compra en viviendas de segunda mano el ITP, ( según tramo de precio, ) en viviendas de Obra Nueva el IVA y AJD y en ambos casos los honorarios de notaria y registro*.
* El precio no incluye los honorarios de intermediación, que deberá¡ abonar el comprador. , servicios incluidos: búsqueda, negociación, asesoría financiera-hipotecaria, técnica y legal, acompañamiento completo hasta notaría y posventa.











































