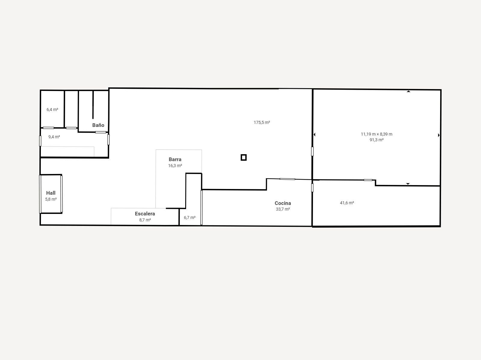
No pierdas la oportunidad de cumplir el sueño de tener tu propia sala de eventos y fiestas en Yuncos. CMS Inmobiliaria te ofrece la oportunidad de adquirir esta nave en venta en Yuncos, de 313 m2 de superficie construida del año 2004, puede ser tuya!!!Consta de dos espacios claramente diferenciados en dos plantas. La planta baja, en la que nos recibe un pequeño patio, decorado con césped artificial y jardín vertical, le acompaña un estanque. Entramos a la sala, un gran espacio donde se encuentra la barra a la derecha de la nave y en la zona de la izquierda le acompañan varios reservados para comer o cenar tranquilamente. En esta misma planta tienes una cocina industrial espectacular con todo lo necesario para poder tener tu negocio al 100%. Con dos aseos, además de un gran almacén al fondo y otra sala enorme donde encontrarás zona de ocio infantil (ahora mismo fuera de uso), con su gran parque de bolas. Subimos las escaleras de madera y llegamos a la zona de discoteca, todo decorado con luces y espejos a modo de pista central, con la barra al fondo y zona de reservados, además de la cabina del Dj. La nave se vende semi amueblada, con toda la decoración.Además consta de A/A + bomba de calor en las dos plantas. Suelos de gres, alarma interior. Tiene 2 entradas, la principal que sería el portón para el público y otra puerta de acceso. Situado en el polígono de Yuncos, zona privilegiada ya que tiene un acceso a la carretera de Toledo cercano y fácil, podrás disfrutar de la gran proximidad a grandes comercios. ‘No esperes el momento perfecto, haz que este momento sea perfecto’. Somos agentes titulados de la propiedad (API), con más de 20 años en el sector. * El precio de la oferta puede ser modificado o darse de baja sin previo aviso. Todos los datos expuestos son meramente orientativos. El precio no incluye impuestos ni gastos. Se debe añadir a la compra en viviendas de segunda mano el ITP, ( según tramo de precio, ) en viviendas de Obra Nueva el IVA y AJD y en ambos casos los honorarios de notaria y registro*.
* El precio no incluye los honorarios a inmobiliaria, los cuales corresponden al 3% del precio final de venta (más el IVA correspondiente) y deberán ser abonados íntegramente por la parte compradora. Dichos honorarios cubren de forma integral los siguientes servicios: • Negociación de condiciones. • Gestión de intermediación financiera, técnica y legal. • Acompañamiento completo durante todo el proceso hasta la firma en notaría. • Servicio postventa.
No dudes en llamarnos y fijar una visita con nuestros agentes para conocer más detalles sobre esta propiedad.











































